| 練馬区氷川台二丁目101番地5 |
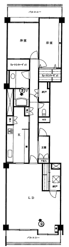
| 所在地 | 練馬区氷川台二丁目101番地5 |
| 評価書上の交通 | 東京メトロ有楽町線 氷川台駅 北東方 約0.73km(道路距離、徒歩約10分) 東京メトロ副都心線 氷川台駅 北東方 約0.73km(道路距離、徒歩約10分) 氷川台二丁目バス停 至近 |
| 参考交通 | 東京メトロ有楽町線・副都心線 氷川台駅 北東方 0.86km 東武東上線 上板橋駅 南西方 0.97km 東京メトロ有楽町線 平和台駅 東方 1.42km 東京メトロ副都心線 平和台駅 東方 1.42km 東京メトロ有楽町線・副都心線 平和台駅 東方 1.42km |
| ※表示される地図は、実際の所在地と正確に一致しない場合があります。 | |







競売でフラット35住宅ローンが使える!



初心者も安心 競売用語辞典
競売・不動産に関わる各種法律に関する問題は、顧問弁護士が対応致しますのでご安心ください。






